De ruwbouwwerken schieten goed op van deze zeer ruime bij centrum gelegen woning met 4 slpks, carport en tuinberging op ca 435 m². Energie label A+
Eengezinswoning voor € 520.000
Reinpadstraat 49, 3600 Genk
Ref: spir85
4 slaapkamers
1 badkamer
214m2 woonopp.
435m2 grondopp.
Bouwjaar: 2026
Omschrijving
Ligging:
Deze verrassend ruime nieuwbouwwoning in halfopen bebouwing ligt op een rustige locatie in een fietsstraat, op wandelafstand van het centrum van Genk en de scholengemeenschap. Met in de nabije buurt een bushalte, tal van supermarkten en winkels
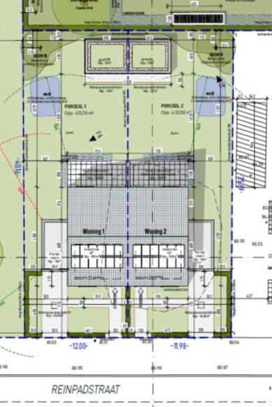
De woning nr. 47 (links) is gelegen op een perceel van ca 434 m². De zijtuin is zuidwest en de achtertuin is noordwest georiënteerd.
De woning nr. 49 (rechts) is gelegen op een perceel van 435 m². De zijtuin is noordoost en de achtertuin is noordwest georiënteerd.
Algemeen:
Deze nieuwe woning wordt volgens de thans geldende normen energiezuinig gebouwd en we streven ernaar om dit nog wat beter te doen. De norm is een E-peil van 30. Volgens de EPB-startverklaring gaan we een E-peil van ca -1 (label A+)halen waardoor u een energie-neutrale woning heeft en reeds beter doet dan de norm voor 2050 (label A).
Om dat te bereiken wordt de woning voorzien van goede isolatiematerialen, uitgerust met een balansventilatie met warmteterugwinning (systeeem D), vloerverwarming én koeling in de volledige woning op de warmtepomp en voorzien van zonnepanelen.
De woning wordt gebouwd met traditionele bouwmaterialen met een spouwmuur met gevelsteen, spouwisolatie 14 cm en de binnenmuren in thermoblokken, verlijmd.
De vloerisolatie heeft een dikte van ca 16 cm. Het dak krijgt minimaal 22 cm dikke isolatiedekens (Knauf Multifit) en op het dak liggen gebakken pannen.
De ramen zijn vervaardigd met aluminium thermisch geïsoleerde profielen, kleur zwart aan de buiten- en binnenzijde, voorzien van dubbel super-isolerend glas Ug=1,0, waar vereist met dubbel gelaagd super-isolerend glas Ug=1.0 voorzien.
De woningen krijgen een degelijke afwerking mee. Voor de ventilatie wordt er gebruik gemaakt van een balansventilatie-systeem met warmteterugwinning van ca 90% (dus geen tochtende roosters op de ramen). De verwarming is met vloerverwarming op de begane grond, in de badkamer, dressing en alle slaapkamers alsook de hobbyruimte op zolder, aangesloten op een lucht/water warmtepomp met warmwatervoorziening (boiler 190 liter).
De regenwaterinstallatie voorziet de buitenkraan en de 2 wc’s van gratis water.
Er zijn 15 zonnepanelen voorzien van 435 Wp (totaal 6525 Wp).
De woning heeft een bruto vloeroppervlakte van 214 m² volgens het EPB-Rapport.
Indeling:
De woning heeft een gerieflijke en optimale indeling met op de begane grond een inkomhal met apart toilet en de trap naar de verdieping, een ruime woonkamer (10,7x4.00m) en een open ingerichte keuken, een berging, gastentoilet en een carport. Op de verdieping zijn er drie ruime slaapkamers waarvan één met dressing, een badkamer met douche, bad en badkamermeubel, een aparte wasplaats alsook nog een apart toilet. Op zolder is er nog een volledig afgewerkte 4de slaapkamer die ook dienst kan doen als hobbyruimte, alsook een aparte berging en een technische ruimte.
Achter de woning is een geïsoleerde gemetste tuinberging met groendak, (De gevels in dezelfde materialen als de woning, de binnenmuren en plafond in zichtbaar beton.
De afwerking is nog door de koper zelf te kiezen zodat u de woning naar uw eigen smaak kan inrichten.
Deze gerieflijke en praktisch ingedeelde supergeïsoleerde woning, is zeker een aanrader. We zijn overtuigd dat het aangenaam wonen zal zijn in deze mooie en duurzaam gebouwde woning vlak bij het centrum van Genk.
Voor meer info Bel vrijblijvend op 0477 35 20 79.
Deze verrassend ruime nieuwbouwwoning in halfopen bebouwing ligt op een rustige locatie in een fietsstraat, op wandelafstand van het centrum van Genk en de scholengemeenschap. Met in de nabije buurt een bushalte, tal van supermarkten en winkels
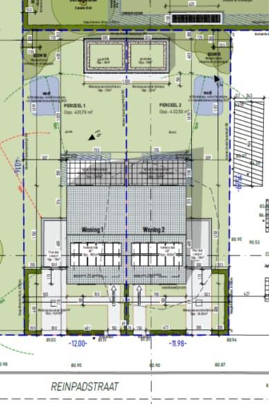
De woning nr. 47 (links) is gelegen op een perceel van ca 434 m². De zijtuin is zuidwest en de achtertuin is noordwest georiënteerd.
De woning nr. 49 (rechts) is gelegen op een perceel van 435 m². De zijtuin is noordoost en de achtertuin is noordwest georiënteerd.
Algemeen:
Deze nieuwe woning wordt volgens de thans geldende normen energiezuinig gebouwd en we streven ernaar om dit nog wat beter te doen. De norm is een E-peil van 30. Volgens de EPB-startverklaring gaan we een E-peil van ca -1 (label A+)halen waardoor u een energie-neutrale woning heeft en reeds beter doet dan de norm voor 2050 (label A).
Om dat te bereiken wordt de woning voorzien van goede isolatiematerialen, uitgerust met een balansventilatie met warmteterugwinning (systeeem D), vloerverwarming én koeling in de volledige woning op de warmtepomp en voorzien van zonnepanelen.
De woning wordt gebouwd met traditionele bouwmaterialen met een spouwmuur met gevelsteen, spouwisolatie 14 cm en de binnenmuren in thermoblokken, verlijmd.
De vloerisolatie heeft een dikte van ca 16 cm. Het dak krijgt minimaal 22 cm dikke isolatiedekens (Knauf Multifit) en op het dak liggen gebakken pannen.
De ramen zijn vervaardigd met aluminium thermisch geïsoleerde profielen, kleur zwart aan de buiten- en binnenzijde, voorzien van dubbel super-isolerend glas Ug=1,0, waar vereist met dubbel gelaagd super-isolerend glas Ug=1.0 voorzien.
De woningen krijgen een degelijke afwerking mee. Voor de ventilatie wordt er gebruik gemaakt van een balansventilatie-systeem met warmteterugwinning van ca 90% (dus geen tochtende roosters op de ramen). De verwarming is met vloerverwarming op de begane grond, in de badkamer, dressing en alle slaapkamers alsook de hobbyruimte op zolder, aangesloten op een lucht/water warmtepomp met warmwatervoorziening (boiler 190 liter).
De regenwaterinstallatie voorziet de buitenkraan en de 2 wc’s van gratis water.
Er zijn 15 zonnepanelen voorzien van 435 Wp (totaal 6525 Wp).
De woning heeft een bruto vloeroppervlakte van 214 m² volgens het EPB-Rapport.
Indeling:
De woning heeft een gerieflijke en optimale indeling met op de begane grond een inkomhal met apart toilet en de trap naar de verdieping, een ruime woonkamer (10,7x4.00m) en een open ingerichte keuken, een berging, gastentoilet en een carport. Op de verdieping zijn er drie ruime slaapkamers waarvan één met dressing, een badkamer met douche, bad en badkamermeubel, een aparte wasplaats alsook nog een apart toilet. Op zolder is er nog een volledig afgewerkte 4de slaapkamer die ook dienst kan doen als hobbyruimte, alsook een aparte berging en een technische ruimte.
Achter de woning is een geïsoleerde gemetste tuinberging met groendak, (De gevels in dezelfde materialen als de woning, de binnenmuren en plafond in zichtbaar beton.
De afwerking is nog door de koper zelf te kiezen zodat u de woning naar uw eigen smaak kan inrichten.
Deze gerieflijke en praktisch ingedeelde supergeïsoleerde woning, is zeker een aanrader. We zijn overtuigd dat het aangenaam wonen zal zijn in deze mooie en duurzaam gebouwde woning vlak bij het centrum van Genk.
Voor meer info Bel vrijblijvend op 0477 35 20 79.
Ruimtelijke ordening
| Bouwvergunning | Ja |
| Recente bestemming | Woongebied |
| Dagvaardingen | Nee |
| Rechterlijke herstelmaatregel | Nee |
| Bestuursdwang | Nee |
| Last onder dwangsom | Nee |
| Minnelijke schikking | Nee |
| Voorkooprecht | Nee |
| Verkavelingsvergunning | Ja |
| As-Built Attest verkregen | In aanvraag |
| Effectief overstromingsgevoelig | Nee |
| Mogelijk overstromingsgevoelig | Nee |
| Afgebakend overstromingsgebied | Nee |
| Afgebakende oeverzone | Nee |
| Risicozone voor overstromingen | Nee |
| G-score | A |
| P-score | A |
| Beschermd pand? | Nee |
| Beschermd monument | Nee |
| Beschermd landschap | Nee |
| Beschermd cultuurhistorisch landschap | Nee |
| Beschermd stadsgezicht | Nee |
| Beschermd dorpsgezicht | Nee |
| Beschermde archeologische site | Nee |
| Beschermde archeologische zone | Nee |
| Beschermd archeologisch monument | Nee |
Comfort
| Keukentype | Geïnstalleerd |
| Badkamer type | Ingericht |
| Verwarming | Elektriciteit |
| Beschrijving verwarming | Lucht/Water warmtepomp met boiler, overal vloerverwarming, kan ook koelen. |
| Vloerverwarming | ja |
| Centrale verwarming | ja |
| Zonnepanelen | ja |
| Warmtepomp | ja |
| Schrijnwerk buiten | Aluminium |
| Beglazing | Dubbel glas |
| Ramentekst | Aluminium ramen met hoogrendementsbeglazing K=1.0, waar nodig gelaagd veiligheidsglas en met doorvalbeveiliging. |
| Dressing | ja |
| Aansluiting elektriciteit | ja |
| Aansluiting riolering | ja |
| Aansluiting telefoonlijn | ja |
| Aansluiting Internet | ja |
| Aansluiting waterleiding | ja |
| Waterput | ja |
| Inhoud waterput (liter) | 7500 |
Financiële info
| Prijs constructie | € 387.500,00 |
| Prijs grondaandeel | € 132.500,00 |
| Aankoop excl. kosten | € 520.000,00 |
| BTW constructie aan 21% | € 81.375,00 |
| Registratie grond (12%) | € 15.900,00 |
| Raming ereloon notaris | € 3.149,69 |
| Raming aktekosten notaris | € 525,00 |
| Raming aansluitingskosten | € 4.000,00 |
| Totale aankoopprijs | € 624.949,69 |
Overige Info
| Vrij op | bij oplevering |
| Tuin aanwezig | ja |
| Orientatie tuin | NW |
| Tuin inrichting | Niet aangelegd |
| Aantal carports | 1 |
| Instapklaar | ja |
| Fietsenberging | ja |
Bebouwing
| Bebouwing | halfopen |
| Bouwjaar | 2026 |
| Aantal slaapkamers | 4 |
| Aantal badkamers | 1 |
| Aantal wc's | 2 |
| Nieuwbouw | ja |
| Staat | Nieuwe staat |
| Grond oppervlakte | 435 m² |
| Woonoppervlakte | 214 m² |
| Type dak | Zadeldak |
| Dak | Spantendak met gebakken pannen, antraciet. GeIsoleerd met 22 cm glaswolisolatie. |
| Elektrisch keuringsattest | Niet ingegeven |
| Lage energiewoning | ja |
| Renovatieplicht | Nee |
Alle aanbiedingen gelden onder voorbehoud van fouten, eerdere verkoop, prijswijzigingen of vergetelheid.